


灰库布袋除尘器的启、停操作在除灰控制系统PLC的LCD上完成远方操作,并在LCD上显示启、停运行状态。灰库顶部袋式除尘器故障报警信号(差压过高、差压过低等)进入除灰控制系统PLC。
服务电话:13091153069(同微信)
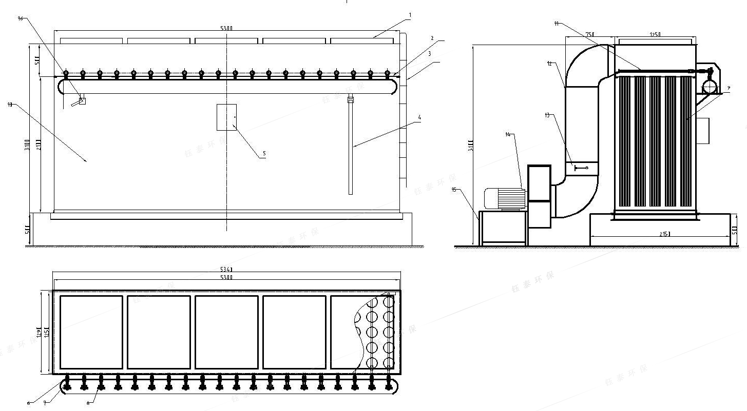
内蒙古蒙东能源某电厂灰库顶部原有MC-120布袋除尘器(每座灰库各1台),原除尘器设计过滤面积为120㎡,由于低省输灰系统及超低排放后电除尘输灰频率的增加,导致目前灰库进气量增了50%,现布袋除尘器的过滤面积已经不满足灰库的进气量,需对布袋除尘器改造到过滤面积为240㎡的除尘器。改造后的布袋除尘器的启、停操作在除灰控制系统PLC的LCD上完成远方操作,并在LCD上显示启、停运行状态。灰库顶部袋式除尘器故障报警信号(差压过高、差压过低等)进入除灰控制系统PLC。
灰库布袋除尘器改造实施计划,为每台除尘器增设通风烟道至地面与落地的抽尘风机连接,并在烟道设置手动调风阀ф460mm、更换落地抽尘风机3台,检修平台3套、更换上箱体花板、安装褶皱滤袋、喷吹管、脉冲控制仪、气源压力低值报警装置、控制系统、真空释放阀3台,逆止阀3台。
改造后,灰库的每单台库顶布袋除尘器技术参数:处理风量17000m3/h、过滤风速1.0m/min、过滤面积240m2,滤袋耐温135℃、抽尘风机出口含尘浓度≤10mg/Nm3。除尘器外型尺寸为原除尘器外壳尺寸:5.3×1.25×3.1m(高)
